BRAND 185
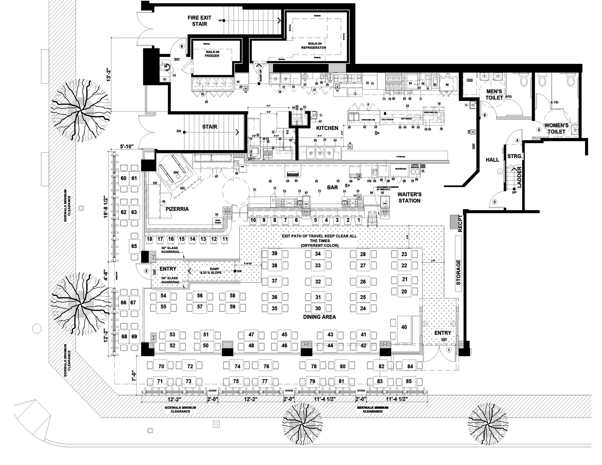
158 South Brand Blvd, Glendale, CA 91204. i was the junior architect for this restaurant throughout all stages of design, construction and marketing.
158 South Brand Blvd, Glendale, CA 91204. i was the junior architect for this restaurant throughout all stages of design, construction and marketing.