HOUSE OF CRAVINGS
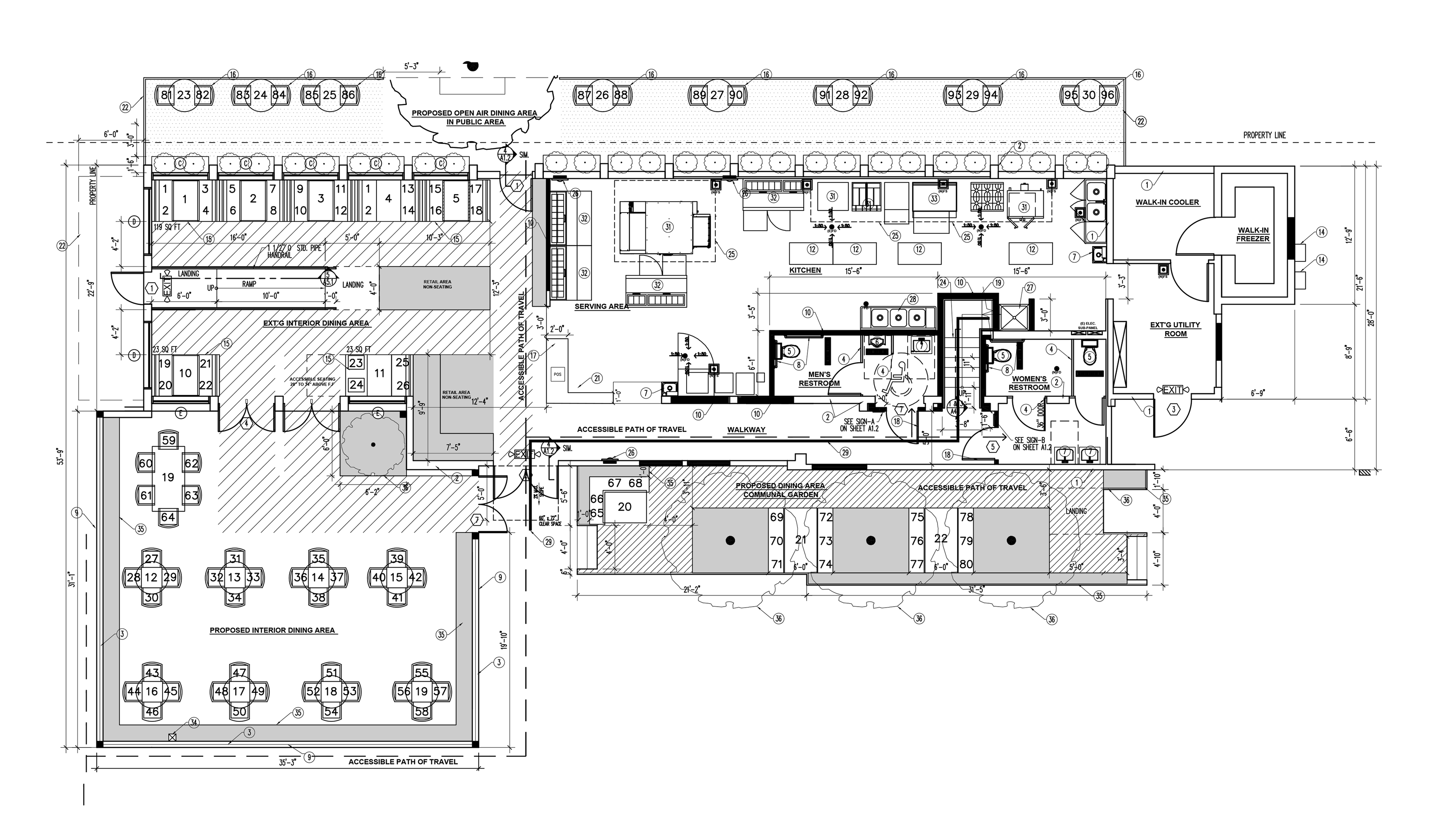
8925 olympic blvd., beverly hills, ca 90211. i was lead junior architect throughout all stages of design and construction. I also served as a foreman directly under the superintendent during construction
8925 olympic blvd., beverly hills, ca 90211. i was lead junior architect throughout all stages of design and construction. I also served as a foreman directly under the superintendent during construction