SOMERA HOUSE
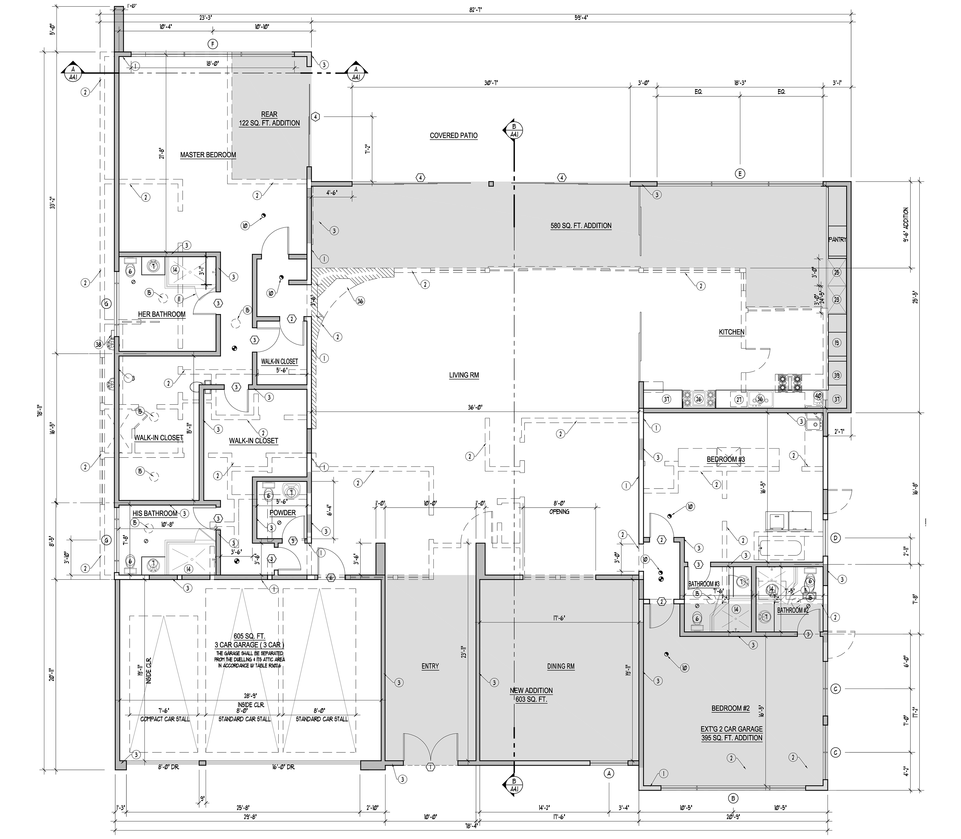
980 SOMERA ROAD, LOS ANGELES, CA 90077 (4216 SQ FT SINGLE FAMILY RESIDENCE). i was project coordinator/junior architect throughout all stages of design and construction.
980 SOMERA ROAD, LOS ANGELES, CA 90077 (4216 SQ FT SINGLE FAMILY RESIDENCE). i was project coordinator/junior architect throughout all stages of design and construction.