UNIQLO
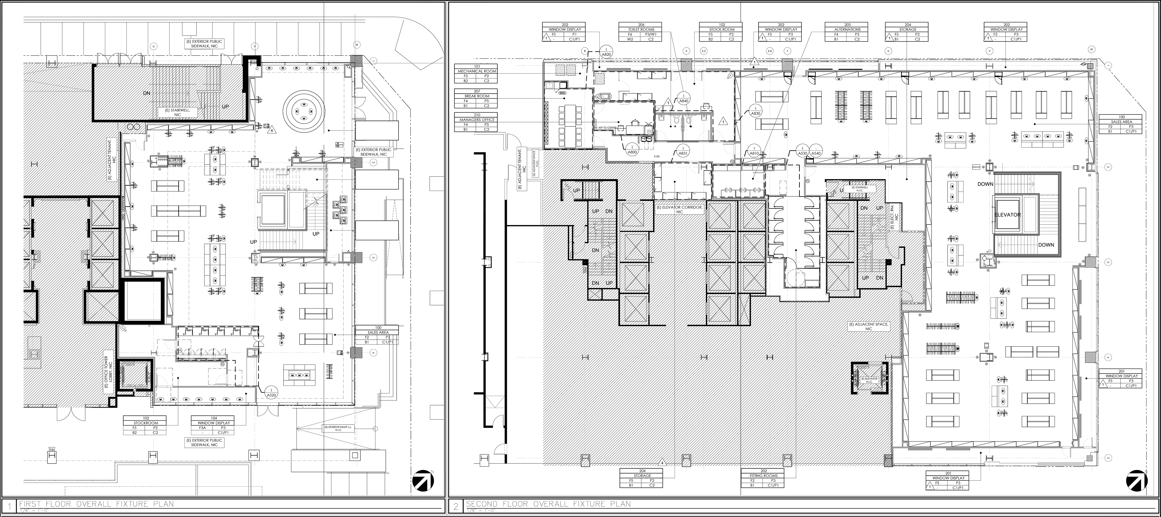
the bloc, 700 west 7th street, los angeles, ca 90017. this is the brands largest location in los angeles and the first in downtown. I served as project manager until its final stages of design and construction.
the bloc, 700 west 7th street, los angeles, ca 90017. this is the brands largest location in los angeles and the first in downtown. I served as project manager until its final stages of design and construction.