About
work
retail
restaurants
contact
About
work
retail
restaurants
contact
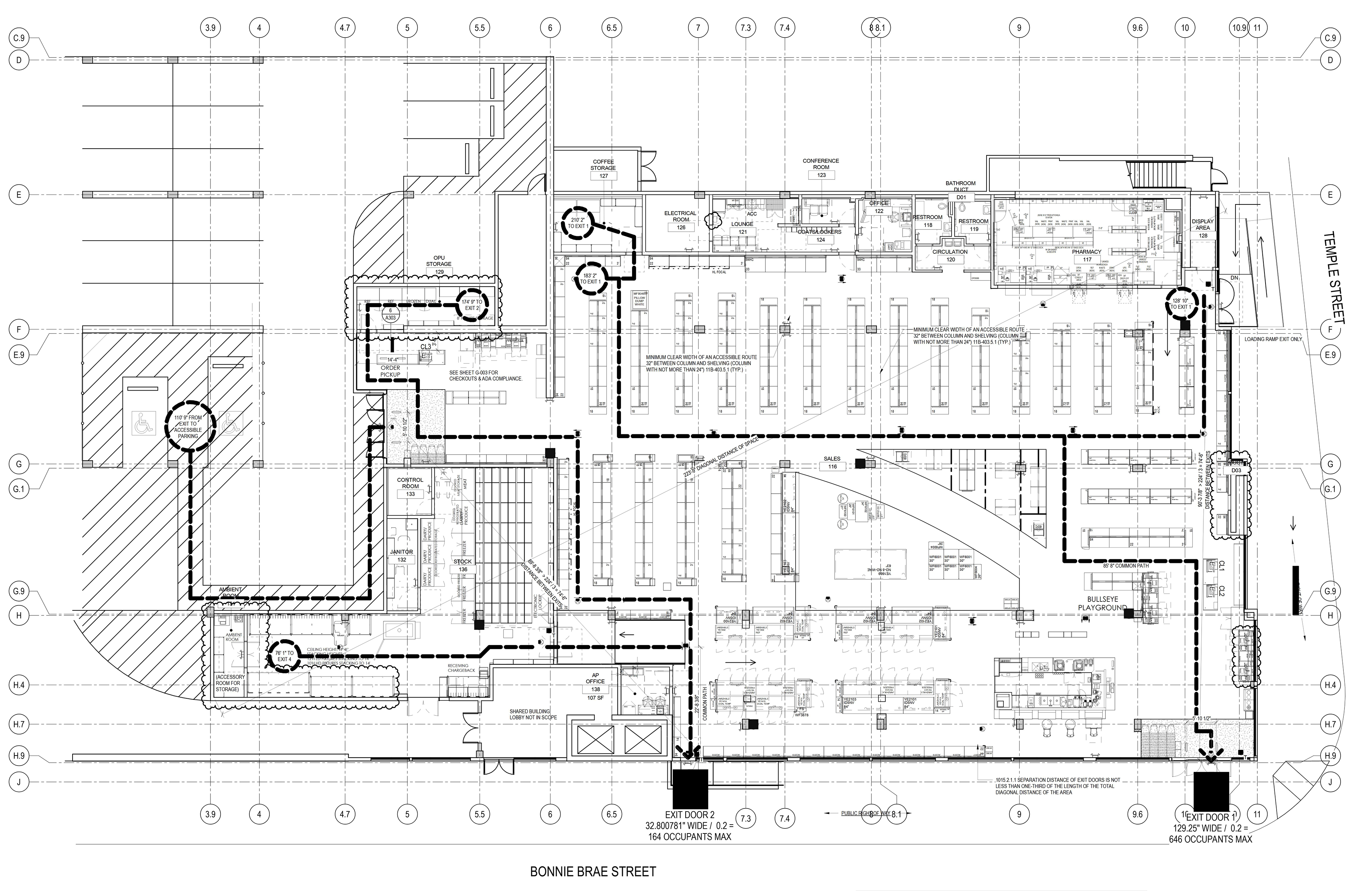
TARGET
i was project manager for this location throughout all stages of construction.
(THE SHOPS ON TEMPLE) 330 WESTLAKE AVE., ECHO PARK, CA 90026
You may also like
DECIEM
2022
BRAND 185
2016
TESLA
2020
GRADUATE PORTFOLIO
2015
SEPHORA
2022
BARRY'S BOOT CAMP
2018
artwork
2022
COFFEE BEAN & TEA LEAF
2017
HOUSE OF CRAVINGS
2017
UNIQLO
2019
↑
Back to Top